2 Bedroom 2 Bathroom Penthouse in Villamartin
27-49-496-11-1023/76962 - 2 Bedroom 2 Bathroom Penthouse in Villamartin
Description
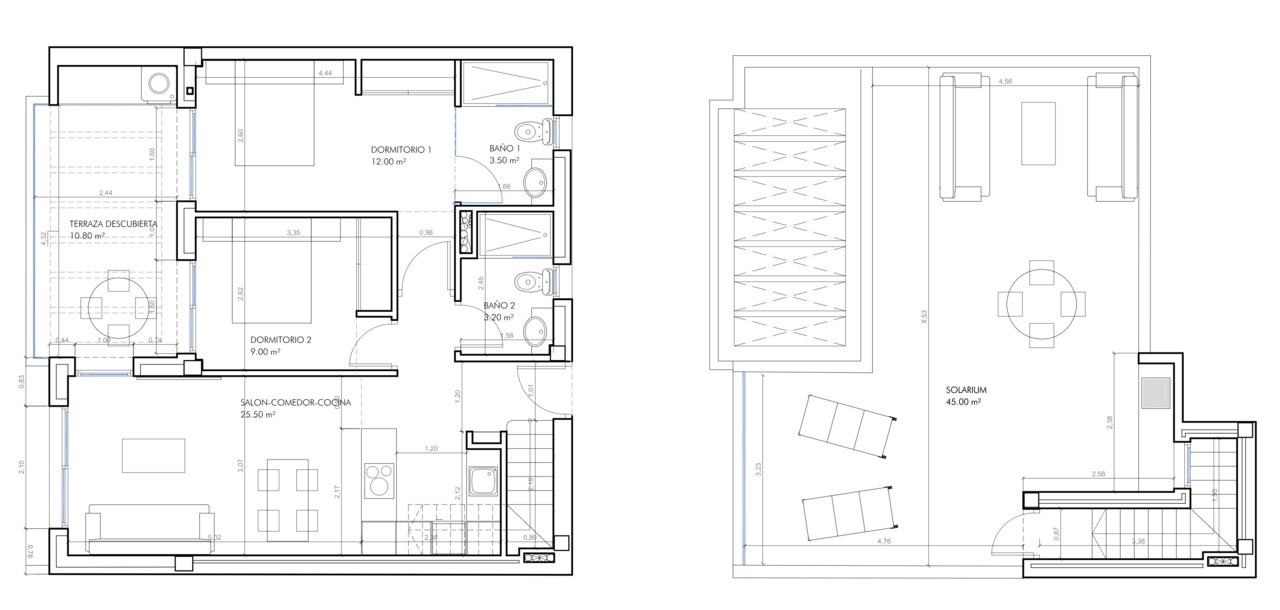
Penthouse This modern penthouse apartment with 2 bedrooms, 2 bathrooms is situated in Villamartin, Alicante set in a great location only a few minutes walk to all local amenities (restaurants, bars and shops). The fantastic La Zenia beach and La Zenia Boulevard shopping centre is also a 10 minute drive. Villamartin Plaza and Villamartin Golf are less than 4 minutes away.The property is comprised of a spacious lounge area, an open plan kitchen/dining area, electric shutters, air conditioning (hot/cold) throughout the property, a main bedroom with fitted wardrobes and en-suite bathroom, a further guest bedroom with fitted wardrobes and a second bathroom with walk-in shower. Patio doors lead out onto a private terrace (with small utility room) to enjoy the sun all day and there is a large rooftop terrace/solarium with summer kitchen, shower and amazing views. Private allocated parking space is also included. There is a lovely communal green area with communal swimming pool, petanque zone, children's playground and a beautiful communal park.These apartments are fantastic value for money and the location is great with the bars, restaurants and amenities only a short walk away.The Villamartin area is very popular with tourists and most of the population consists of Western European expatriate communities who have settled there in the last 10 years, virtually transforming the village into a modern-looking town. There are also other golf courses nearby and numerous white sandy beaches.Buy with confidence
We are a family company who located to Spain from Lancashire in 2003 and in 2006 We created Live Med Coast Sl. and have specialised over the last 19 years assisting people like yourselves to find their ideal home here in Spain.
You will find our service professional and yet relaxed with no pressure as we fully understand the purchasing of a property can be stressful enough when buying in your own country let alone a property abroad. And for this reason, we offer the complete service not only the sourcing of the property, but we assist in all matters of the process and then we pride ourselves on our aftersales service which you can see in the testimonials we have received and on Google with a 4.9* rating. And will always be attended & looked after by a family member. For further piece of mind, we are signed to AIPP code of practices Since March 2018.
