3 Bedroom 2 Bathroom Town House in Rojales
31-1862-115-10-115/64431 - 3 Bedroom 2 Bathroom Town House in Rojales
Description
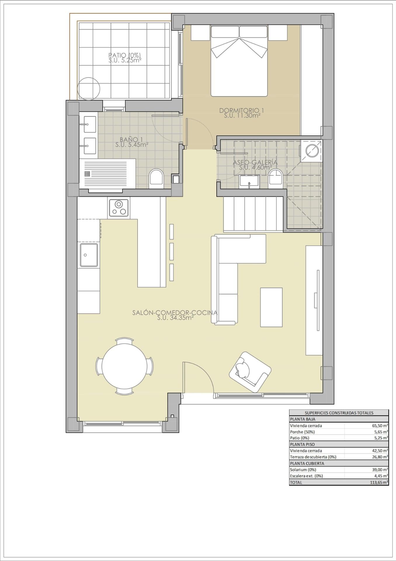
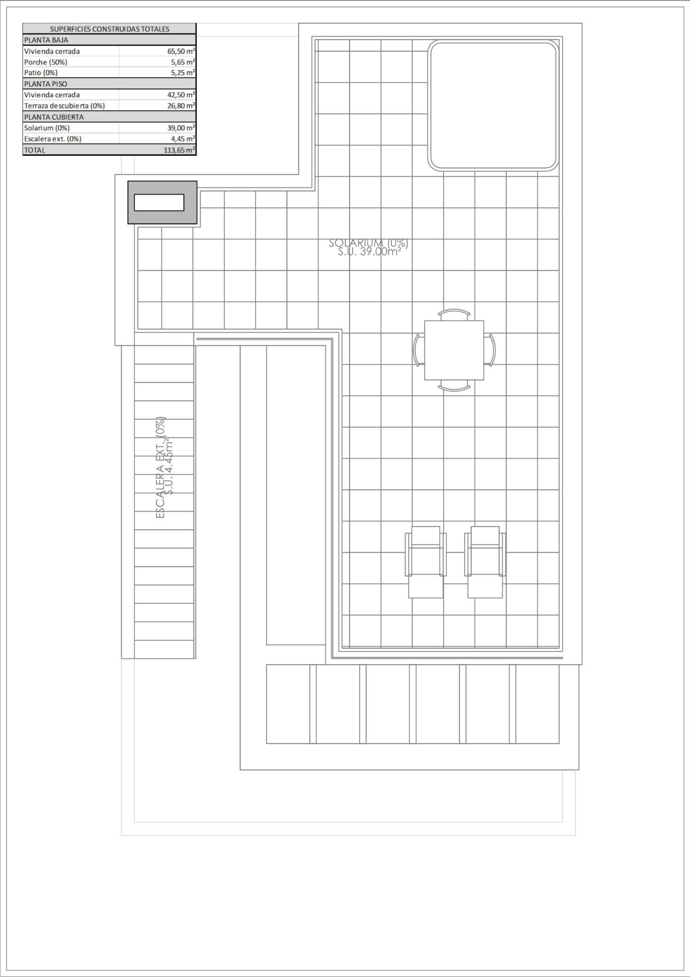
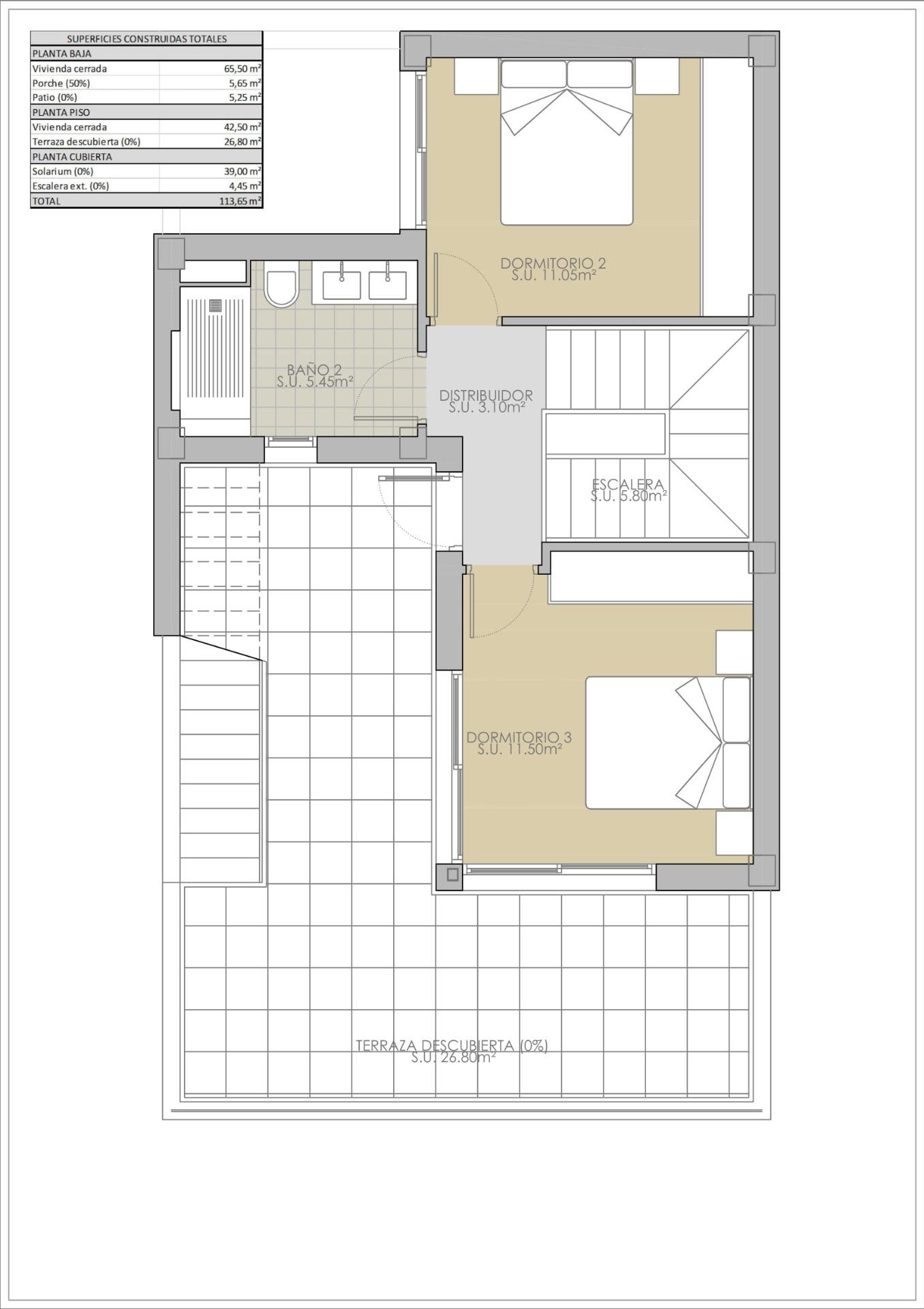
Town house, New Build Rojales new modern Townhouse for sale with private swimming pool located in this traditional town full of amenities, but only a 20 minute walk from the commercial centre of La marquesa Ciudad Quesada.NEW BUILD TOWNHOUSES IN ROJALES New Build modern residential of townhouses and semi-detached villas in Rojales. Properties has 3 bedrooms, 2 bathrooms, guest toilet, open plan kitchen with living area and direct access to the terrace, private garden with the parking space. An options for a solarium and a private pool at an extra cost. Rojales it is a lovely village with all services such as supermarkets, pharmacies, banks, restaurants and natural park located very close by. There a 3 golf courses nearby and the blue flag beaches are just a short 10 minute drive away, as well as water parks in nearby Rojales and Torrevieja. Alicante & Murcia airports are 45 minutes drive away.Buy with confidence
We are a family company who located to Spain from Lancashire in 2003 and in 2006 We created Live Med Coast Sl. and have specialised over the last 19 years assisting people like yourselves to find their ideal home here in Spain.
You will find our service professional and yet relaxed with no pressure as we fully understand the purchasing of a property can be stressful enough when buying in your own country let alone a property abroad. And for this reason, we offer the complete service not only the sourcing of the property, but we assist in all matters of the process and then we pride ourselves on our aftersales service which you can see in the testimonials we have received and on Google with a 4.9* rating. And will always be attended & looked after by a family member. For further piece of mind, we are signed to AIPP code of practices Since March 2018.
