4 Bedroom 3 Bathroom Villa in Aspe
31-2440-115-10-115/67609 - 4 Bedroom 3 Bathroom Villa in Aspe
Description
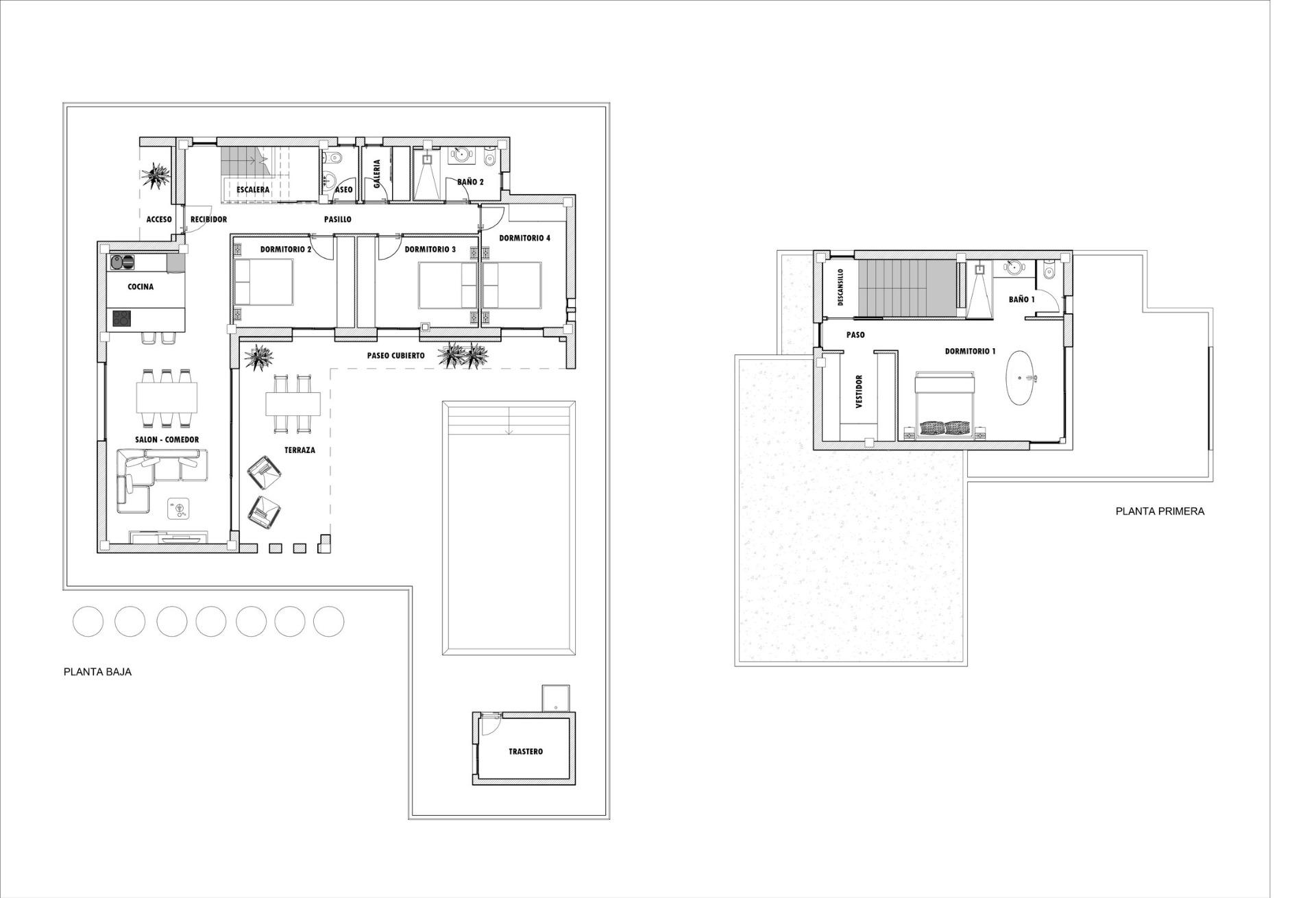
Villa, New Build Newly built villas located in the municipality of Aspe. Newly built villas with several models to choose from, with 2, 3 or 4 bedrooms, on one or two floors and built with slabs or with a structure: depending on the model and the plot chosen, the exact price will be calculated. All the villas are built on rustic plots of over 10,000 m2, of which around 2,500 m2 will be fenced off. The villas have an open-plan kitchen with living room, built-in wardrobes, private swimming pool, porch, storage room and outdoor parking space. There are several plots to choose from. The price is based on a plot priced at €75 000 (if another plot is chosen, the difference will be paid or credited according to the price of the plot). Self-build project, delivery in approximately 12 months from the granting of the licence. If you are looking for a quiet environment, close to typical Spanish villages away from tourist crowds, surrounded by mountains, with a very large plot and about 30 minutes from the sea, this is your home. Aspe is a typical Spanish village with all the amenities for everyday life, surrounded by mountains and with several natural areas nearby where you can go hiking or mountain biking. Located 25 km from the beach, 9 km from Elche and about 20 km from Alicante airport.Buy with confidence
We are a family company who located to Spain from Lancashire in 2003 and in 2006 We created Live Med Coast Sl. and have specialised over the last 19 years assisting people like yourselves to find their ideal home here in Spain.
You will find our service professional and yet relaxed with no pressure as we fully understand the purchasing of a property can be stressful enough when buying in your own country let alone a property abroad. And for this reason, we offer the complete service not only the sourcing of the property, but we assist in all matters of the process and then we pride ourselves on our aftersales service which you can see in the testimonials we have received and on Google with a 4.9* rating. And will always be attended & looked after by a family member. For further piece of mind, we are signed to AIPP code of practices Since March 2018.
