3 Bedroom 2 Bathroom Villa in Dolores
31-2663-115-10-115/71842 - 3 Bedroom 2 Bathroom Villa in Dolores
Description
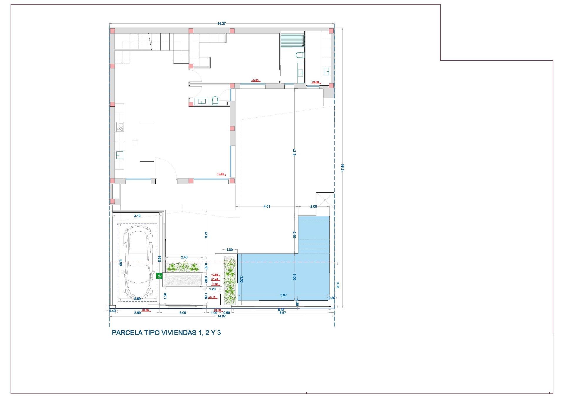
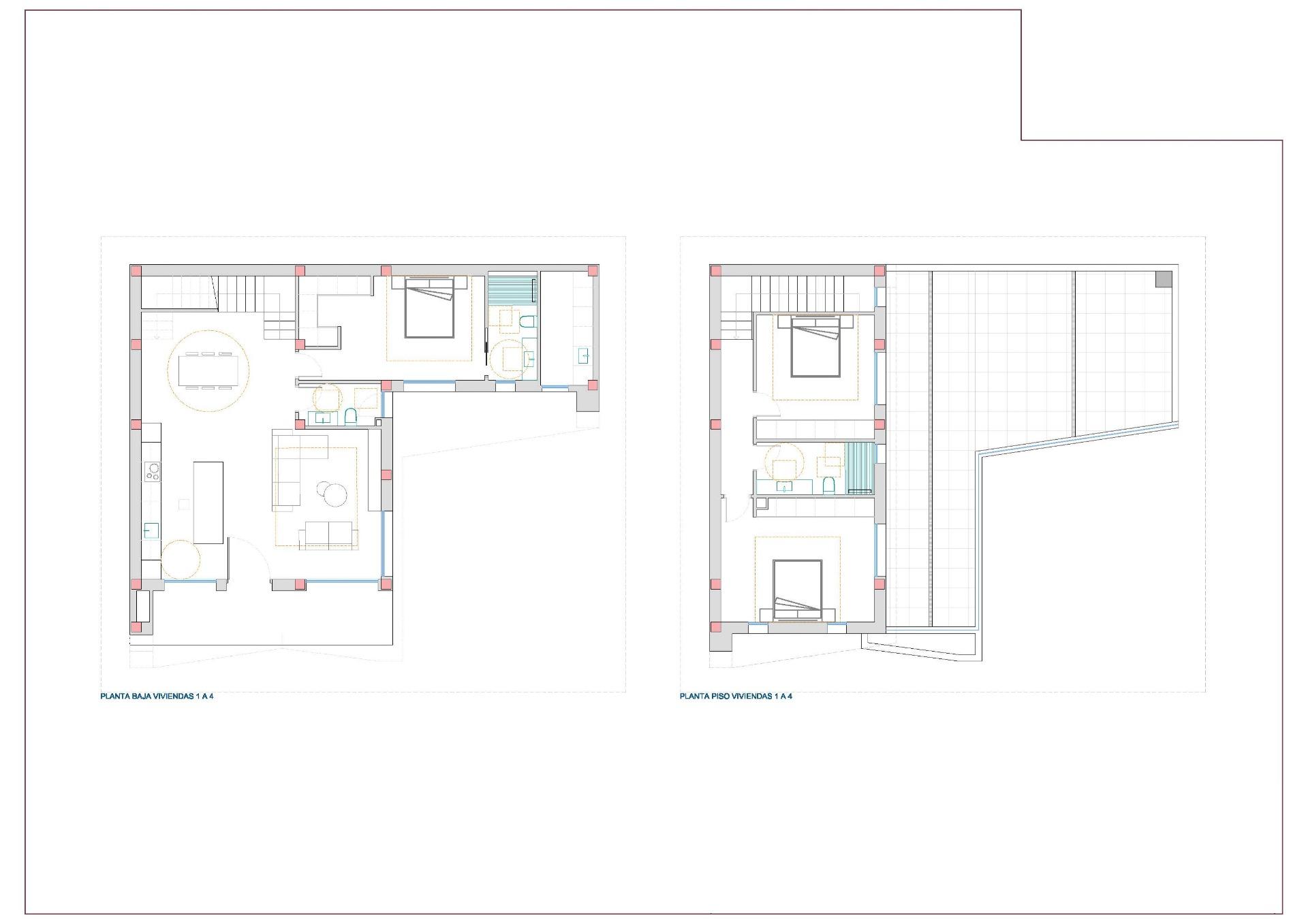
New Build, Villa Modern New Build Villas in Dolores, Alicante Contemporary Living in the Heart of the Vega Baja Discover this exclusive new build villa development in Dolores, a charming town in the Vega Baja del Segura region, south of Alicante. Known for its traditional Spanish character and surrounded by lush countryside, Dolores offers a peaceful lifestyle while providing all daily amenities within walking distance — shops, restaurants, schools, and local services. Situated just 12 km from the beaches of La Marina and Guardamar del Segura, and with easy access to the AP-7 motorway, this residential area is perfectly connected to the main coastal towns of the Costa Blanca. Elegant Modern Villas with Private Pool These modern two-story villas have been designed for comfort, functionality, and style. On the ground floor, you’ll find a bright open-plan kitchen connected to the living-dining area, with large sliding doors opening directly to the terrace and private garden with swimming pool. The ground floor also features one bedroom with an ensuite bathroom, a guest toilet, and a convenient outdoor laundry area. On the first floor, there are two additional bedrooms, a bathroom, and access to a large 60 m2 open terrace, perfect for sunbathing or relaxing while enjoying the Mediterranean climate. Each home includes private parking inside the plot. Quality Finishes and Modern Comfort Built with high-quality materials and contemporary design, these villas come fully equipped for year-round living. Main features include: Exterior carpentry with thermal bridge break Motorized blinds Hot water system powered by aerothermal energy Ducted air conditioning fully installed Private swimming pool Private parking and landscaped garden The interiors combine elegance and functionality, maximizing natural light and offering an exceptional living environment with a strong connection between indoor and outdoor spaces. Prime Location Close to Everything Dolores enjoys a strategic location, providing a balance between tranquility and accessibility. Key distances: Beaches of La Marina and Guardamar del Segura: 12 km Alicante Airport (Elche-El Altet): 30 km (25 minutes by car) Murcia-Corvera Airport: 70 km (1 hour by car) Golf Courses: 15 km Alicante city: 40 km Live the Mediterranean Lifestyle in Dolores These new build villas in Dolores offer the perfect combination of modern design, comfort, and proximity to the coast. Ideal for both permanent residence and holiday living, they provide a serene Mediterranean lifestyle surrounded by nature and convenience. Contact us today to arrange a viewing and make your dream home in Dolores a reality.Buy with confidence
We are a family company who located to Spain from Lancashire in 2003 and in 2006 We created Live Med Coast Sl. and have specialised over the last 19 years assisting people like yourselves to find their ideal home here in Spain.
You will find our service professional and yet relaxed with no pressure as we fully understand the purchasing of a property can be stressful enough when buying in your own country let alone a property abroad. And for this reason, we offer the complete service not only the sourcing of the property, but we assist in all matters of the process and then we pride ourselves on our aftersales service which you can see in the testimonials we have received and on Google with a 4.9* rating. And will always be attended & looked after by a family member. For further piece of mind, we are signed to AIPP code of practices Since March 2018.
